Monobloque Itaca 120 ECO Puerta Guillotina
Monobloque fabricado en chapa de acero para leña. Interior de vermiculita totalmente desmontable, que le da una mayor claridad al hogar. Apertura de puerta guillotina, con apertura lateral para su limpieza. Control de aire primario y secundario con sistema de doble combustión, que se regula con el mismo mando del control secundario y mantiene el cristal limpio más tiempo.
ITACA salta hacia una nueva dimensión renovando su estética, un nuevo y silencioso sistema de ventilación y todo ello con los mejores estándares de combustión.
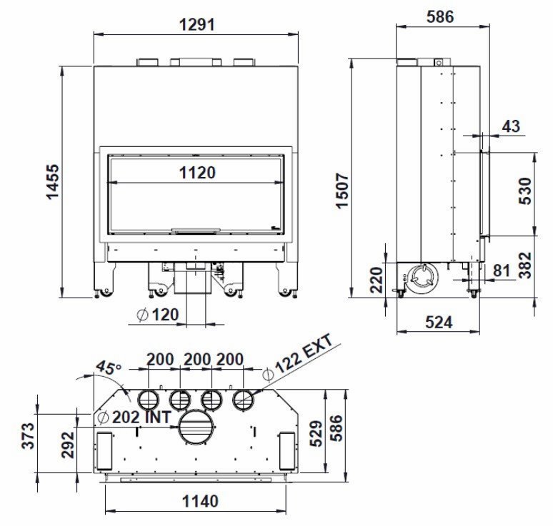
MEDIDAS:
Totales 1291 x 1507 x 586 mm
Hogar 1040 x 525 x 360 mm
Ancho x alto x fondo
Material exterior: Acero / Material hogar: Vermiculita
Visión del fuego: Muy alta / Puerta guillotina
Tipo Ventilación: Turbina centrífuga 800 m3
Cenicero de acero / Deflector vermiculita
Canalización aire exterior
Control de velocidad y dirección del aire
Óptima combustión / Doble Combustión
Cristal anti-manchas / Deshollinado fácil
Realizamos envíos a todo el país.






